服部緑地レストハウス リニューアルオープンのお知らせ
2026年3月21日

令和8年春、服部緑地のレストハウスが装い新たに生まれ変わります。
新しいレストハウスには、レストスペース(休憩所)、カフェ、レンタルスタジオ、ロッカーシャワー、モビリティステーション等の多様な機能があります。
新たな公園の活動拠点として、是非ご利用ください。
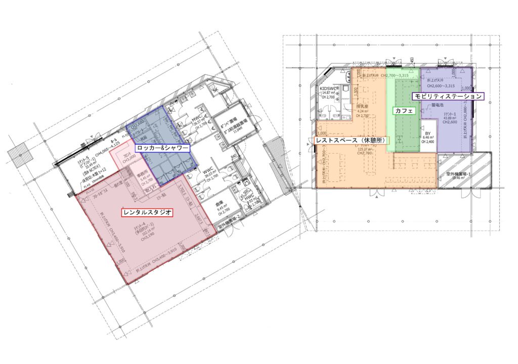
【建物内部のレイアウト】

■BEACHTOWN服部緑地

レンタルスタジオ、ロッカーシャワー(ランナー向け)、本格的なグランドピアノなどを
設けており、地域の多様な活動をサポートする施設です。
緑に囲まれたヨガプログラムなど、多様なプログラムを用意しているので是非ご利用くだ
さい。
※各種プログラムの利用、レンタルスタジオなどの予約は下記URLよりお願いします。(有料)
営業時間:平日9:00~17:00、休日7:00~15:00
(Web)BEACHTOWN服部緑地 https://hattoriryokuchi.beachtown.co.jp/(外部リンク)
お問合せ Mail : hattoriryokuchi@beachtown.co.jp
■balder coffee服部緑地店(カフェ)

どなたでも利用可能なレストスペース(休憩所)で、カフェメニュー(ドリンク・軽食)を提供します。
レストスペースには、自由に読書頂ける図書(無料)や観葉植物(購入可能)を設置しています。
営業時間:8:00~20:00
(Web) 株式会社 Bond http://bond-botanical.jp/cafe/(外部リンク)
(Instagram)baldercoffee_hattoriryokuchi (外部リンク)
■モビリティステーション(とりモビ) オープン日未定
新型モビリティ(座り乗りタイプ)で快適に園内を走行頂けます。
※下記予約サイトより予約が必要となります。(無料)
営業時間:10:00~16:00(12:00~14:00は利用不可)
<予約サイトは近日公開予定>
